Three Bedroom Residence, Pendry Residences, St Peter

Resort Community West Coast

Price (USD):

$2,725,000

Size (sq ft):

2,363

Bedrooms:

2

Bathrooms:

2

A fully serviced marina-front residence backed by a global hospitality brand.

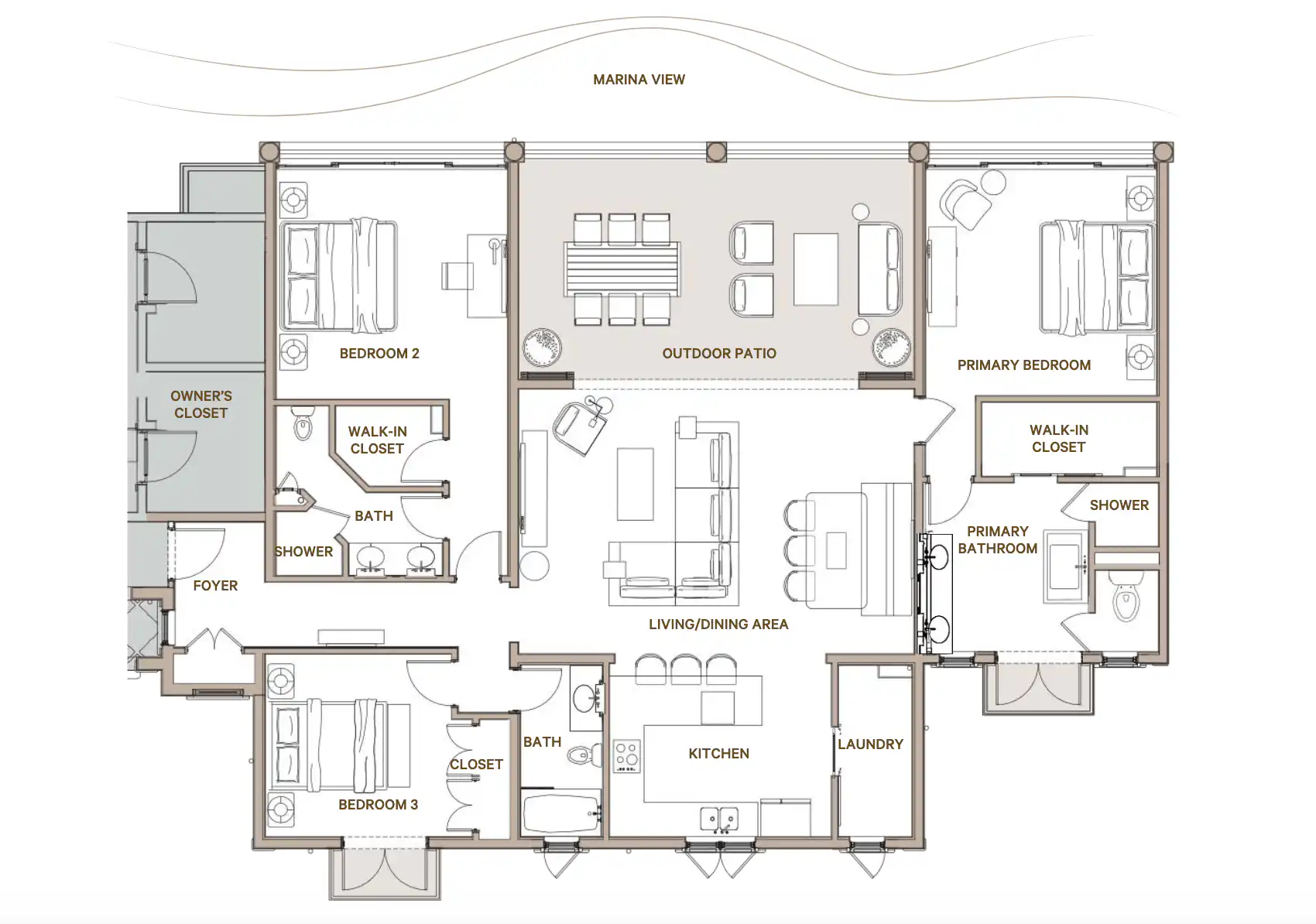
From US$2,725,000 | 3 Bedrooms | 3 Bathrooms | 2,363 to 2,569 sq. ft. of living space | Marina and sea views | Large covered terrace

Pendry Residences Barbados introduces a different level of ownership on the island. This is not just another West Coast development. It is Barbados’ first true branded residential offering, backed by Pendry Hotels & Resorts and Montage International.

Set across 4.5 acres at Six Men’s Bay, the project combines beachfront access with a protected 110-berth marina. That combination is rare on the island. For buyers who value both sea access and boating, this location stands apart.

The three-bedroom residences are designed for practical luxury. Sizes range from approximately 2,363 to 2,569 sq. ft., with layouts that focus on open living and usable outdoor space. Floor-to-ceiling glass doors lead to large covered terraces, providing a seamless indoor-outdoor flow that works year-round.

Inside, the finish is clean and consistent. Marble and limestone surfaces, coral stone features, and interiors furnished by RH create a look that feels considered without being overdone. The spaces are easy to live in and easy to maintain.

Each of the three bedrooms is set up as a full suite, giving privacy for owners and guests. Views look out across the marina and towards the sea, adding movement and interest throughout the day.

From a practical standpoint, these residences are fully turnkey. You walk into a completed home with furniture, finishes, and systems already in place. There is also a dedicated owner’s storage area and a well-designed laundry room, both of which are important for longer stays or full-time use.

Ownership here is supported by a full-service structure. A dedicated residential liaison team handles day-to-day needs. Owners will also have access to a private lounge and fitness centre, along with the full range of resort amenities once the resort is completed.

The resort itself, scheduled for completion in 2027, will include an 80-room hotel, multiple dining venues, a spa, a children’s club, and full concierge services. This is the type of infrastructure that supports both lifestyle and rental performance.

For buyers seeking long-term value, the optional rental management programme offers a clear path to income generation without the usual operational challenges.

The Pendry Yacht Club adds another layer. With 110 berths for vessels up to 85 feet, full dock services, and a marina clubhouse, it creates a proper yachting environment rather than a token feature. Owners receive priority access to membership.

Location also plays its part. Six Men’s sits between Speightstown and Holetown. You are close to restaurants, beach clubs, and everyday amenities, while still feeling slightly removed from the busiest parts of the coast.

This is a structured, service-led ownership model. It suits buyers who want simplicity, consistency, and a property that works whether they are on the island or not.

Contact Residence Barbados to review current availability, pricing, and the most favourable positions within the development.

Residence Availability January 2026

  • Residence 401 – US$2,785,000
  • Residence 404 – US$2,725,000
  • Residence 502 – US$2,815,000
  • Residence 505 – US$2,895,000
  • Residence 603 – US$2,775,000
  • Residence 606 – US$2,950,000

Property Summary:

  • 3 bedrooms, 3 bathrooms
  • 2,363 to 2,569 sq. ft. of living space
  • Marina and sea views
  • Large covered terrace
  • Open plan living and dining
  • RH furnished interiors
  • Marble, limestone, and coral stone finishes
  • Fully turnkey residences
  • Owner’s storage and laundry room
  • Dedicated residential liaison team
  • Access to Pendry resort amenities
  • Optional rental management programme
  • Access to a 110-berth marina and yacht club
  • Gated, private development

Enquire Now

FAQs

Frequently asked questions about

Three Bedroom Residence, Pendry Residences

Is this a fully managed property?
Yes. Owners have access to a full-service structure including concierge, maintenance, and optional rental management.
What makes this different from other west coast developments?
This is a branded residence backed by Pendry and Montage, offering consistent service standards, global recognition, and access to a marina and yacht club.
Can I use the property year-round?
Yes. These residences are designed for both full-time living and holiday use, with all services in place to support extended stays.

Inspiring Properties For Sale

More Properties

Barbados Property Buying Guide

Free Guide

Unlock The Secrets Of Your Barbados Dream

Dreaming of owning a slice of Caribbean heaven? Barbados beckons with its stunning beaches, vibrant culture, and endless sunshine. But navigating the intricacies of buying property in a foreign market can feel daunting. That’s where Residence Barbados comes in. Download your FREE copy of our Ultimate Guide to Buying Property in Barbados, a comprehensive 50-page resource packed with invaluable insights to guide you every step of the way. Click the button below.

About Residence Barbados

The team behind Residence Barbados has over 25 years’ experience in the residential and co-ownership market. We have worked with some of the biggest brands here on Barbados, in the US and the UK and understand the international market.